Save Our Camden Centre!

Save Our Camden Centre!

Save Our Camden Centre

Welcome to SOCC, Save Our Camden Centre.  Recent proposals to redevelop the Royal Victoria Place (RVP) Shopping Centre have put the Camden Centre at risk.  Our group is deeply concerned that the current plans would spell the end of a community hub that is so important to local groups and businesses. We think people in Tunbridge Wells and the wider community should be aware of the threat to the Camden Centre and we want to work with Tunbridge Wells Borough Council to find a positive outcome for all concerned. Read more here.

Contact Us

Updates and Info

VACANCY: Social Media Manager

VACANCY: Social Media Manager


Can you setup and manage Socials?  Insta, X, WhatsApp Groups, Facebook, TikTok etc.  Work with us! 

Market Square "De-Coupled"

Market Square "De-Coupled"


Good news!  The plans for Market Square have been "De-Coupled" from RVP Planning Application!

RVP Future Engagement

RVP Future Engagement


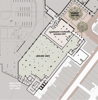
Outline proposal for basement "leisure" use at RVP